.
Eladó Ház 1183 Budapest 18. kerület , 1183 Budapest 18, Központi
M323636
Eladó
Családi ház
Prémium
77 000 000 Ft
1183 Budapest 18. kerület , 1183 Budapest 18, Központi
5 szoba
110 m²
413 m² telek
Törlesztőrészlet Ft/hó
THM %
12 megtekintés az elmúlt 7 napban
Leírás
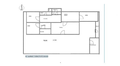
Eladó Budapest XVIII. kerületének kedvelt, családbarát részén, Pestszentlőrincen egy 110 m2-es, részlegesen felújított családi ház 412 m2-es telekkel.
Az ingatlan tágas és praktikus elrendezésű: három szoba + fél szoba, amerikai konyhás nappali, fürdőszoba, külön WC és spejz található benne. A 16 m2-es fedett terasz tökéletes helyszín közös családi pihenésekhez és kerti beszélgetésekhez.
A ház komfortjáról három hűtő-fűtő klíma gondoskodik, illetve H-tarifás besorolása miatt kedvező rezsiköltséget biztosít. A telken nyílt kocsibeálló áll rendelkezésre, így az autóval való beállás megoldott.
Elhelyezkedése kifejezetten előnyös: rövid sétával több buszjárat is elérhető, amelyek négy irányba biztosítanak gyors közlekedést Pesterzsébet, Rákoskeresztúr, Kőbánya-Kispest és Ferihegy Vecsés felé. A környék csendes, mégis központi, teljes infrastruktúrával: óvodák, iskolák, boltok, szolgáltatások könnyen megközelíthetők.
Ideális választás azoknak a családoknak, akik kényelmes, jó elhelyezkedésű, jól alakítható otthont keresnek Pestszentlőrinc szívében.
Mutass többet
Általános adatok
Építés éve:
1980
Belső szintek száma:
Nincs megadva
Épület külső állapota:
2 - Felújítandó
Épület belső állapota:
Nincs megadva
Fényviszonyok:
Nézet:
Nincs megadva
Fűtés:
Elektromos
Szerkezet:
Tégla
Energetikai besorolás:
Nincs megadva
Víz:
Nincs megadva
Gáz:
Nincs megadva
Villany:
Nincs megadva
Csatorna:
Nincs megadva
Lakáshitel kalkulátor – Spórolj velünk!
Kalkulálj most, és keresd pénzügyi szakértőinket, akik ingyenes tanácsadással segítenek megtalálni a számodra legjobb megoldást!

Hasonló ingatlanok

1183 Budapest 18. kerület

HZ031142 | 4 szoba | 128 m²
94 900 000 Ft

1188 Budapest 18. kerület

HZ067330 | 4 szoba | 88 m²
79 990 000 Ft

1182 Budapest 18. kerület Szent Imre-kertvárosban, 3 generációs, önálló családi ház

HZ022802 | 6 szoba | 180 m²
105 000 000 Ft

1182 Budapest 18. kerület Szent Imre-kertváros

HZ055068 | 3 szoba | 109 m²
115 000 000 Ft

1188 Budapest 18. kerület Újpéteritelepen 2 generációs kiváló állapotú családi ház

HZ080895 | 6 szoba | 193 m²
140 000 000 Ft

1188 Budapest 18. kerület

HZ083996 | 4 szoba | 130 m²
125 990 000 Ft

1182 Budapest 18. kerület Gloriett-telep

HZ062081 | 4 szoba | 130 m²
145 800 000 Ft

1188 Budapest 18. kerület Eladó családi ház Pestszentimrén!

HZ015296 | 4 szoba | 170 m²
140 000 000 Ft

1186 Budapest 18. kerület

HZ041101 | 4 szoba | 110 m²
99 900 000 Ft

1186 Budapest 18. kerület

HZ010444 | 2 szoba | 70 m²
49 900 000 Ft

1188 Budapest 18. kerület Pestszentimre központ közelében

HZ047381 | 7 szoba | 300 m²
140 000 000 Ft

1186 Budapest 18. kerület

HZ072428 | 2 szoba | 40 m²
49 900 000 Ft

1183 Budapest 18. kerület Tünde utca

HZ050194 | 4 szoba | 110 m²
74 500 000 Ft

1183 Budapest 18. kerület Csendes, biztonságos, kertvárosi környéken kellemes házrész

HZ034930 | 3 szoba | 69 m²
59 900 000 Ft

1185 Budapest 18. kerület Amerikai konyhás nappali + 2 hálószobás új építésű ház

HZ075483 | 3 szoba | 114 m²
133 000 000 Ft

1182 Budapest 18. kerület

HZ093905 | 5 szoba | 140 m²
120 000 000 Ft

1183 Budapest 18. kerület

H498138 | 2 szoba | 54 m²
64 870 000 Ft

1181 Budapest 18. kerület Bókaytelep, 543 nm-es telek, családi ház, lakható mellék ép.

HZ096934 | 115 m²
109 000 000 Ft

1188 Budapest 18. kerület Jó állapotú, kényelmes családi ház, jó tömegközlekedéssel

HZ055557 | 7 szoba | 175 m²
133 000 000 Ft

1185 Budapest 18. kerület

HZ030591 | 4 szoba | 156 m²
160 000 000 Ft
Tóth Beáta
Értékesítő
Kapcsolatfelvétel
Hívom
Kapcsolatfelvétel
Kérjen egy személyes megtekintést az ingatlanra a Duna House értékesítőjétől
Válassz egy időpontot