.
Eladó Ház 8086 Felcsút , Minőségi új építés
HZ067439
Eladó
Családi ház
Prémium
110 000 000 Ft
8086 Felcsút , Minőségi új építés
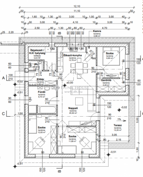
4 szoba
100 m²
1017 m² telek
Törlesztőrészlet Ft/hó
THM %
9 megtekintés az elmúlt 7 napban
Leírás
Eladó egy lenyűgöző, modern kialakítású téglaépítésű ingatlan, napfényes terekkel, panorámás telken, 100 négyzetméteres területen.

Akármi alakítható még rajta. 1017nm-es telken készül.


Ne hagyja ki ezt a ritkán adódó lehetőséget, válasszon egy tényleg különleges otthont! Vegye fel velünk a kapcsolatot még ma, hogy megtekinthesse ezt a csodálatos ingatlant személyesen.



Az ingatlan nemcsak otthonként, hanem befektetésként is kiváló választás, hiszen a modern kialakítású, napfényes és panorámás elhelyezkedés mindig keresett az ingatlanpiacon.



Az ingatlan belső tereit természetes fény árasztja el, ami a nagy ablakoknak és a kedvező tájolásnak köszönhető. A nappaliban és a hálószobákban is élvezheti a látványos panorámát, amely a környező táj természetes szépségébe engedi be az otthonát. A tágas, jól megtervezett elrendezés lehetővé teszi, hogy mindenki megtalálja a számára ideális pihenő, vagy éppen munka helyet.



Fedezze fel ezt az egyedi lehetőséget, amely kiváló választás azok számára, akik a kényelmet és a stílusos otthonokat részesítik előnyben. Az épület a modern építészeti megoldások és a magas minőségű anyagok ötvözetéből született, így garantálva a hosszú távú értékmegtartást és élhetőséget. A tégla szerkezet biztosítja az ingatlan tartósságát és energiatakarékosságát, valamint hozzájárul a kellemes belső hőmérséklethez az év minden szakában.

Mutass többet
Általános adatok
Építés éve:
2026
Belső szintek száma:
1
Épület külső állapota:
6 - Új. ép.
Épület belső állapota:
6 - Új. ép.
Fényviszonyok:
Napfényes
Nézet:
Udvar
Fűtés:
Hőszivattyú,Hőszivattyú,Klíma
Szerkezet:
Tégla
Energetikai besorolás:
Nincs megadva
Víz:
Ingatlanban
Gáz:
Ingatlanban
Villany:
Ingatlanban
Csatorna:
Ingatlanban
Lakáshitel kalkulátor – Spórolj velünk!
Kalkulálj most, és keresd pénzügyi szakértőinket, akik ingyenes tanácsadással segítenek megtalálni a számodra legjobb megoldást!

Hasonló ingatlanok

Héring Rómeó
Ezüst fokozatú értékesítő
Kapcsolatfelvétel
Hívom
Kapcsolatfelvétel
Kérjen egy személyes megtekintést az ingatlanra a Duna House értékesítőjétől
Válassz egy időpontot