.

Listanézet
Térkép nézet

Projekt részletek

Info:
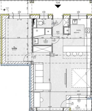
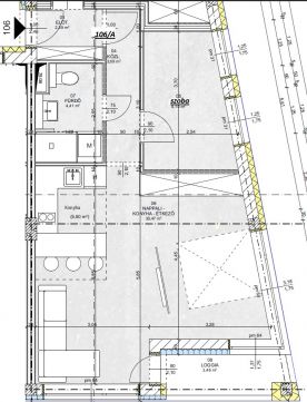
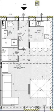
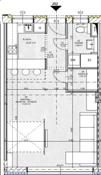
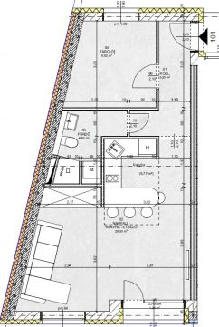
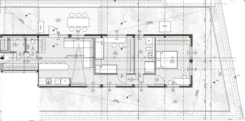
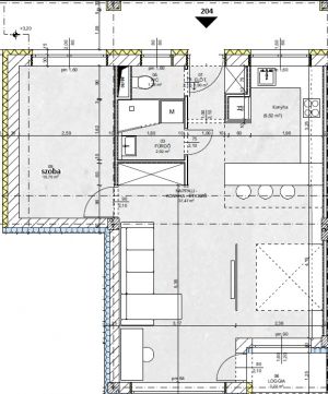
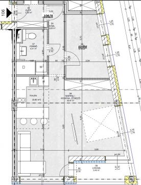
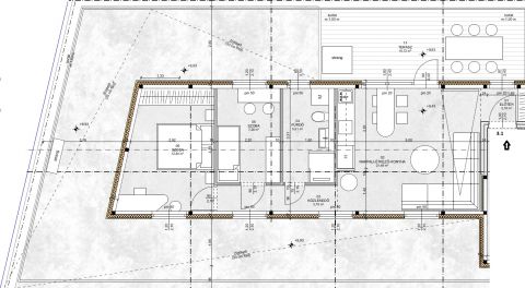
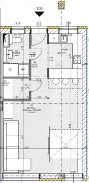
Debrecen belvárosában egy 16 lakásos újépítésű projekt építése vette kezdetét.
Különösen jó lokációval, remek elosztású lakások kerülnek megépítésre.
Pinceszinten terempakolók, földszinten irodák, üzletek, míg az első és második emeleten 7-7 lakás, addig a 2.-ik emeleten kettő penthouse kerül kialakításra.

Műszaki tartalom:
- 30-as téglafalazat
- 15 cm hőszigetelés
- 3 rétegű nyílászárók
- elektromos redőnnyel
- Hűtés: fain-cool
- választható burkolatok...stb.
Teremgarázs vásárolható 10 Mft-ért

További kérdéseivel kapcsolatban várom hívását, érdeklődését....
Ingatlanok: 11
Árak: 62 387 500 Ft - 130 020 000 Ft
Méretek: 40 - 72 m2
Emeletek: 1 - 3
Befejezés dátuma: 2027-06-30

Property for sale flat-house

(11)
Kérek értesítést, ha a megadott szempontoknak megfelelő új ingatlan kerül feltöltésre.